3D 完成予想図(外観パース)
製作:株式会社アレイト
風景写真にCGパースをはめこみました。屋根や外壁は使用予定のガルバリウム、金属サイディングの色、質感を再現しています。
一応の完成予想図ですが、建物はかなり本物に近いですが、周りの雰囲気は少し違います。リアルに建物が完成するまでお待ちください。そのとき、ホンモノの裏磐梯一法庵に出逢えます。
画像をクリックすると拡大されます。
東南側

北西側

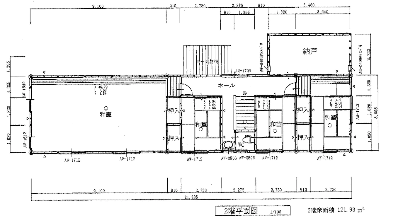
平面図、立面図
設計:前田博史一級建築士事務所
画像をクリックすると拡大され、パソコンの左右キーで順番に画像を閲覧できます。
平面図 : 1階 | 2階
立面図 : 南側 | 西側 | 北側 | 東側
2月1日の第1回設計会議

一法庵として十数年間、毎月接心をしてきたので、多くのひとが滞在する道場にはどういう設備が必要なのかは共通理解がありました。その上で、建設予定地に立ったとき、自分たちの内部に自然と「裏磐梯一法庵」の建物が姿を現してきました。
今年の1月からは一法庵サンガ内で、道場の具体的な間取りの検討を進めました。その原案を2月1日に、前田博史一級建築士(右手前のかた)に提出しました。その後、前田一級建築士による適切な修正を経て、正式な設計図が出来上がりました。国立公園の中なので自然公園法による厳しい建築規制もあるのですが、既に建築許可も下りています。いつでも、建築工事がスタートできます。
<目標>
太陽と雪に素直な、耐震・高気密・高断熱・通気・透湿の家。
つまり、陽当たりがよく、地震に強く、冬暖かく、夏涼しく、換気がよく、適度な湿度で、四季の移り変わりを楽しめ、健康な生活を送れる道場を目指します。